Die Vorteile von Umkleidecontainern für Sportvereine

Das nächste Spiel der Fußballmannschaft steht an oder auf dem Sportplatz bringt ein regionaler Wettbewerb das Publikum zum Kochen. Es gibt viele Situationen, in denen ein Sportverein mehr Räumlichkeiten braucht, als ihm zur Verfügung stehen. Aber es gibt Lösungen für das Raumproblem. Abhilfe schaffen zum Beispiel modulare Umkleidecontainer. Die mobilen Räume bieten Platz und Komfort bei einem richtig guten Preis-Leistungs-
Verhältnis. Was genau sind Umkleidecontainer und wie können Sportvereine die mobilen Räume für sich nutzen?

Was sind Umkleidecontainer?

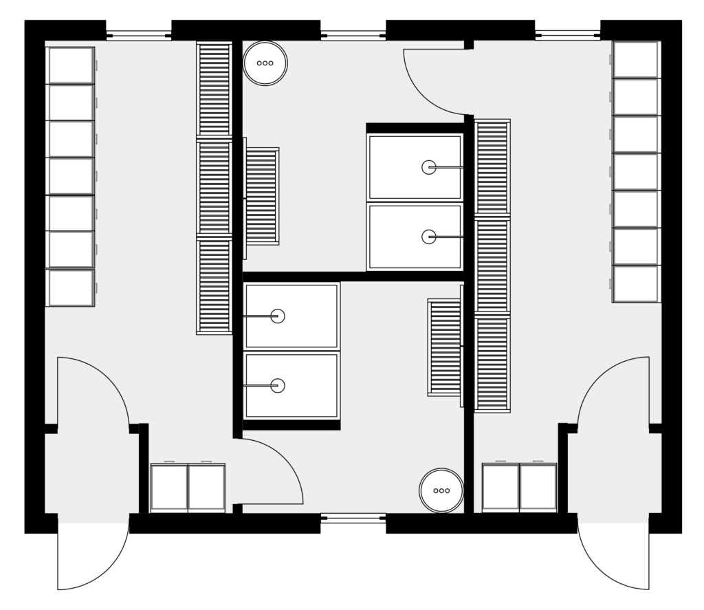
Umkleidecontainer zeichnen sich dadurch aus, dass sie modular aufgebaut sind. Die einzelnen Module lassen sich bequem transportieren und an jedem Ort aufstellen. Je nachdem, wie viel mehr Raum benötigt wird, können ein oder mehrere Elemente aufgebaut werden. Die so entstandenen Räume schützen Sportler, Sportlerinnen, Trainer, Trainerinnen und anderes Betreuungspersonal vor Wind, Wetter und fremden Blicken. Außerdem bieten die Umkleidecontainer die Möglichkeit, persönliche Dinge beim Wettkampf oder im Training sicher zu verstauen.

Umkleidecontainer sind modular aufgebaute, transportable Einheiten, die als Umkleideräume genutzt werden. Sie bieten eine komfortable und wettergeschützte Umgebung, in der sich Sportler umziehen und ihre persönlichen Gegenstände sicher verstauen können. Die Container sind in verschiedenen Größen und Ausstattungen erhältlich, von einfachen Umkleideräumen bis hin zu komplett ausgestatteten Einheiten mit Duschen und Sanitäreinrichtungen.

Umkleidecontainer als modulares System

Ein besonderer Vorteil von mobilen Umkleidecontainern ergibt sich aus dem modularen Aufbau der Elemente. Dadurch sind die praktischen Räume problemlos an viele verschiedene Herausforderungen und örtliche Gegebenheiten anpassbar. Sportvereine können sich genau die Anlagen zusammenstellen, die sie für einen Anlass oder auch Dauer benötigen. Es kann nach Herzenslust umgestaltet, verkleinert und vergrößert werden. 

Vor allem in der Innenausstattung sind den Sportvereinen kaum Grenzen gesetzt. Die Standardcontainer in der Größe eines Schiffscontainers bieten verschiedene Ausgestaltungsoptionen. Kleiderhaken. Spinde, Bänke, sanitäre Einrichtungen. Duschen und vieles mehr machen die mobilen Räume zu echten (Stau)raum-Wundern. 

Dass die Umkleidecontainer dabei nur ein Kompromiss aus Flexibilitäts- und Kostengründen sind, stellt sich allerdings nicht als Problem dar. Ganz im Gegenteil sind die Container aus hochwertigen Materialien wie Stahl oder Aluminium gefertigt. Moderne Isolierungen und Lüftungssysteme sorgen für ein angenehmes Raumklima und lassen schnell vergessen, dass es sich bei den Umkleiden um Container handelt. Innovative Technologien wie Solarpanels sorgen darüber hinaus für nachhaltige und kostenschonende Energieversorgung. Dadurch sind die Container:

  • robust
  • wetterbeständig
  • energieeffizient

Vorteile von Umkleidecontainern für Sportvereine im Überblick

Auf Baustellen oder Festivals hat sich das Auge an die Container in vielen verschiedenen Ausführungen, vom Sanitär- bis zum Wohncontainer, gewöhnt. Dass die flexiblen Räume auch für Sportvereine eine echte Bereicherung und Entlastung sein können, ist noch recht unbekannt. Die Vorteile gerade von Umkleidecontainern liegen aber klar auf der Hand:

  • geringe Kosten: die Umkleidecontainer sind preiswerter als feste Bauwerke
  • schnell verfügbar: Umkleidecontainer sind sofort einsatzbereit und einfach aufstellbar
  • vielseitig und flexibel: die Umkleidecontainer können beliebig mit zusätzlichen Komponenten ausgestattet oder auch gänzlich anders, zum Beispiel als Lager oder Büro, genutzt werden.
  • nachhaltig und ressourcenschonend: durch den Einsatz moderner Materialien und innovativer Technologien sind die Umkleidecontainer besonders umweltfreundlich 

Wofür können Sportvereine Umkleidecontainer nutzen?

Bei den Vorteilen und der Beschreibung der Umkleidecontainer für Sportvereine klangen die verschiedenen Nutzungsmöglichkeiten schon an. Mit den Containern gewinnen Sportvereine:

  • Umkleideräume
  • zusätzliche Sanitäreinrichtungen
  • Veranstaltungsräume für Feste und Turniere
  • Lagerräume
  • zusätzliche Büroräume
  • Aufenthaltsräume für Mitglieder und Gäste

Darüber hinaus sind die Umkleidecontainer eine ideale Lösung bei Modernisierung, Umbau oder Sanierung von Vereinsräumen.

Umkleidecontainer – die ideale Lösung bei Platzproblemen

Modulare transportable Systeme wie die Umkleidecontainer bieten Sportvereinen somit eine Möglichkeit, zusätzlichen Raum bei Veranstaltungen zu schaffen oder aber feste Räumlichkeiten zu installieren, ohne die Vereinskasse mit teuren Bauprojekten zu belasten. Es lohnt sich, sich über die unzähligen Möglichkeiten von MM-Module zu informieren.

MM-Module ist Ihr zuverlässiger Partner für Umkleidecontainer jeder Art

Schreibe einen Kommentar